Mekanik presler eksantrik veya kranklı olabilir. Şekil
2.4’te kranklı bir pres ve çalışma mekanizması görülmektedir. Mekanik preslerin
dakika da strok adedi 90, kapasiteleri ise 8000 tona kadar yükselebilir.
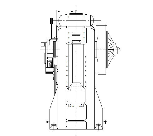
Şekil 2.4Kranklı sıcak dövme presi
Şekil 2.5Kranklı preslerde koç-krank
mekanizması:
S= strok, AÖN = alt ölü nokta, α= AÖN den
önceki
krank açısı, LM = yük
Şekil 2.5 te bir kranklı presin koç-krank mekanizması
verilmiştir. Krank yarıçapı r ( r= S/2 ), teğetsel kuvvet T, sabit kavrama
momenti M ile gösterilirse M= r T .Strok
konumu yani AÖN ya uzaklık (h), küçük α açıları için ( AÖN ya yakın konumlarda
) yaklaşık olarakh= S(1 - cos α) / 2 dir. Koç hızı ise, n krankın dakikada ki
devir sayısı olmak üzere, yaklaşık V= S π n sin α / 60 = π n h (S/h)-1/30
şeklinde hesaplanır. Yük (LM),β açısının α ya kıyasla küçük olduğu
kabul edilerek LM =2 M/S sinα formülünden bulunur. Bu formülden de
görülebileceği gibi M momenti sabit olduğu için, koç AÖN ya yaklaştıkça, yani α
açısı küçüldükçe, LM yüklü sonsuz büyümektedir.
Bu incelemelerden aşağıda ki sonuçlar elde edilebilir.
Mekanik preslerstrok sınırlı makineler olup, koç hızı (V)
ile yük (LM)strokun her konumu için yukarıdaki verilen denklemlerle
hesaplanır. Pres üreticileri tezgahlarını, AÖN nin biraz üstündeki nominal yüke
göre sınıflandırırlar.
Dövme için gerekli kuvvet presin verebileceğinden
küçükse, volanın strok başına sağladığı enerjinin yeterli olması koşulu ile
işlem söz konusu tezgahta yapılabilir.
AÖN ya yakın konumlarda yani küçük α açıları için dövme
yükü, aşırı yük tertibatı yoksa, presin nominal yükünü aşabilir. Bu durumda
pres bloke olur, volan durur ve bütün enerjisini pres gövdesini, biyeli ve
tahrik mekanizmasını zorlayan bir enerjiye dönüşür. Bu durumda genellikle pres
serbest hale getirilebilirse de bunun için tekçare takımların kaynakla
kesilmesidir.
Dövme kuvveti presin nominal yükünü aön ya yakına olmayan
bir konumda aştığı taktirde kavrama kayar, koç durur fakat volan dönmeye devam
eder. Bu durumda koçun AÖN dan önce durmuş olması halinde volanın dönüş yönü
değiştirilerek ve kavramanın hava basıncı arttırılarak pres serbest hale
getirilebilir.

